
JYWQ系列自動攪勻排污泵
1.當自動攪勻排污泵運轉時,自動攪拌池底沉積物,徹底防止污物淤積,無須人工清理;
2.獨特的葉輪設計,具有將纖維物、雜物切碎和撕裂的功能;
3.采用外循環冷卻系統,使排污泵低水位運轉,減少電機起動頻率,延長電機壽命;
4.國家標準圖集推薦產品;
5.上海市高新技術成果轉化產品。
目錄
JYWQ自動攪勻排污泵概述
JYWQ、JBWQ、JPWO系列自動攪勻排污泵是在普通排污泵的基礎上采用自動攪拌裝置,該裝置隨電機軸旋轉,產生極強的攪拌力,將污水池內的沉積物攪拌成懸浮物,吸入泵內排出,提高了泵的防堵、排污能力,一次性完成了排水、清污、除淤、節約了運行成本,是具有明顯的先進性和用性的環保產品。注:JYWQ、JBWQ為普通型自動攪勻排污泵;JPWQ為帶不銹鋼外套內循環冷卻系統自動攪勻排污泵。
JYWQ自動攪勻排污泵主要特點
1.當自動攪勻排污泵運轉時,自動攪拌池底沉積物,徹底防止污物淤積,無須人工清理;
2.獨特的葉輪設計,具有將纖維物、雜物切碎和撕裂的功能;
3.采用外循環冷卻系統,使排污泵低水位運轉,減少電機起動頻率,延長電機壽命;
4.國家標準圖集推薦產品;
5.上海市高新技術成果轉化產品。
JYWQ自動攪勻排污泵型號意義
例:80JYWQ50-10-1600-3
80-排出口徑(mm)
JYWQ-自動攪勻排污泵
50-流量(m3/h) 10-揚程(m) 1600-攪勻范圍(mm) 3-電機功率(KW)
JYWQ自動攪勻排污泵主要用途
1.工廠、商業嚴重污染廢水的排放。
2.城市污水處理廠、醫院、賓館的排水系統。
3.住宅區的污水排水站。
4.人防系統排水站、自來水廠的給水裝置。
5.市政工程、建筑工地。
6.勘探、礦山、發電廠配套附機。
7.農村沼氣池、農田灌溉、河塘清淤。
JYWQ自動攪勻排污泵結構簡圖
![]() |
結構特點說明 1、采用獨特的雙流道無堵塞葉輪結構,提高污水污物的過流能力和排污能力。 2、自動攪拌裝置,產生極強的攪拌力,將池內的沉淀物攪拌成懸浮物后吸入葉輪排出,達到清淤的作用。 3、隔板將底座一分為二,攪拌與進水互不影響。 4、機械密封為雙端面機械密封,長期處于油室中,保證水泵安全可靠地運行。 5、副葉輪結構的流體動力密封,既有輔助密封作用,從而保護機械密封,又平衡軸向力,延長軸承的使用壽命。 6、泵連線腔內沒有漏水檢測探頭,出現漏水時,探頭發出信號,控制系統對泵實施保護,本公司可配全自動安全保護控制柜。 7、電機定子采用B級和F級絕緣,內設熱保護器,當電機過載發熱,保護器及時作出動作,對泵和電機實施絕對的保護。 8、油室內裝有油水探頭,當機械密封損壞后,水進入油室,探頭發出信號由控制系統對水泵實施保護。 9、JPWQ帶內循環冷卻系統,能保證水泵在水池低水位正常工作。
|
1
|
主電纜
|
2
|
機殼
|
3
|
內循環套
|
4
|
油箱
|
5
|
副葉輪
|
6
|
葉輪
|
7
|
泵體
|
8
|
底座
|
9
|
隔板
|
10
|
油水控頭
|
11
|
機械密封
|
13
|
攪拌件
|
-
|
-
|
-
|
-
|
JYWQ自動攪勻排污泵性能參數表
序號 | 型號 |
排出 口徑 (mm) |
額定 流量 (m3/h) |
額定 揚程 (m) |
攪拌 直徑 (mm) |
轉速 (r/min) |
效率 (%) |
自動 耦合器 |
1 | JYWQ50-12-15-1200-1.5 | 50 | 12 | 15 | 1200 | 2900 | 48 | CAK-50 |
2 | JYWQ50-20-7-1200-1.1 | 50 | 20 | 7 | 1200 | 2900 | 62 | CAK-50 |
3 | JYWQ50-10-10-1200-1.1 | 50 | 10 | 10 | 1200 | 2900 | 56 | CAK-50 |
4 | JYWQ50-15-15-1200-2.2 | 50 | 15 | 15 | 1200 | 2900 | 51 | CAK-50 |
5 | JYWQ50-25-10-1200-2.2 | 50 | 25 | 10 | 1200 | 2900 | 65 | CAK-50 |
6 | JYWQ50-15-20-1200-2.2 | 50 | 15 | 20 | 1200 | 2900 | 56 | CAK-50 |
7 | JYWQ50-20-15-1200-2.2 | 50 | 20 | 15 | 1200 | 2900 | 56 | CAK-50 |
8 | JYWQ50-42-9-1200-3 | 50 | 42 | 9 | 1200 | 2900 | 56 | CAK-50 |
9 | JYWQ50-17-25-1200-3 | 50 | 17 | 25 | 1200 | 2900 | 56 | CAK-50 |
10 | JYWQ50-25-22-1200-4 | 50 | 25 | 22 | 1200 | 2900 | 62 | CAK-50 |
11 | JYWQ50-40-15-1400-4 | 50 | 40 | 15 | 1400 | 2900 | 70 | CAK-50 |
12 | JYWQ50-25-32-1600-5.5 | 50 | 25 | 32 | 1600 | 2900 | 52 | CAK-50 |
13 | JYWQ50-40-30-1600-7.5 | 50 | 40 | 30 | 1600 | 2900 | 68 | CAK-50 |
14 | JYWQ65-25-15-1400-3 | 65 | 25 | 15 | 1400 | 2900 | 65 | CAK-65 |
15 | JYWQ65-37-13-1400-3 | 65 | 37 | 13 | 1400 | 2900 | 62 | CAK-65 |
16 | JYWQ65-25-28-1400-4 | 65 | 25 | 28 | 1400 | 2900 | 60 | CAK-65 |
17 | JYWQ80-40-7-1600-2.2 | 80 | 40 | 7 | 1600 | 2900 | 54 | CAK-80 |
18 | JYWQ80-29-8-1600-2.2 | 80 | 29 | 8 | 1600 | 2900 | 54 | CAK-80 |
19 | JYWQ80-43-13-1600-4 | 80 | 43 | 13 | 1600 | 2900 | 63 | CAK-80 |
20 | JYWQ80-50-10-1600-3 | 80 | 50 | 10 | 1600 | 1450 | 76 | CAK-80 |
21 | JYWQ80-40-15-1600-4 | 80 | 40 | 15 | 1600 | 2900 | 70 | CAK-80 |
22 | JYWQ80-60-13-1600-4 | 80 | 60 | 13 | 1600 | 2900 | 70 | CAK-80 |
23 | JYWQ80-35-25-1600-5.5 | 80 | 35 | 25 | 1600 | 2900 | 64 | CAK-80 |
24 | JYWQ80-50-25-1600-7.5 | 80 | 50 | 25 | 1600 | 2900 | 70 | CAK-80 |
25 | JYWQ80-50-30-1600-7.5 | 80 | 50 | 30 | 1600 | 2900 | 70 | CAK-80 |
26 | JYWQ100-80-9-2000-4 | 100 | 80 | 9 | 2000 | 1450 | 62 | CAK-100 |
27 | JYWQ100-110-10-2000-5.5 | 100 | 110 | 10 | 2000 | 1450 | 71 | CAK-100 |
28 | JYWQ100-70-15-2000-5.5 | 100 | 70 | 15 | 2000 | 1450 | 71 | CAK-100 |
29 | JYWQ100-100-15-2000-7.5 | 100 | 100 | 15 | 2000 | 1450 | 73 | CAK-100 |
30 | JYWQ100-80-20-2000-7.5 | 100 | 70 | 20 | 2000 | 2900 | 71 | CAK-100 |
31 | JYWQ100-50-35-2000-11 | 100 | 100 | 35 | 2000 | 2900 | 68 | CAK-100 |
32 | JYWQ100-70-22-2000-7.5 | 100 | 80 | 22 | 2000 | 2900 | 70 | CAK-100 |
33 | JYWQ100-100-22-2000-15 | 100 | 150 | 22 | 2000 | 1450 | 61 | CAK-100 |
34 | JYWQ100-80-30-2000-15 | 100 | 210 | 30 | 2000 | 1450 | 67 | CAK-100 |
35 | JYWQ150-150-10-2000-7.5 | 150 | 250 | 10 | 2000 | 1450 | 75 | CAK-150 |
36 | JYWQ150-210-7-2500-7.5 | 150 | 150 | 7 | 2500 | 1450 | 78 | CAK-150 |
37 | JYWQ150-250-6-2500-7.5 | 150 | 200 | 6 | 2500 | 1450 | 79 | CAK-150 |
38 | JYWQ150-150-15-2500-11 | 150 | 65 | 15 | 2500 | 1450 | 79 | CAK-150 |
39 | JYWQ150-200-10-2500-15 | 150 | 180 | 10 | 2500 | 1450 | 73 | CAK-150 |
40 | JYWQ150-65-40-3200-18.5 | 150 | 150 | 40 | 3200 | 1450 | 58 | CAK-150 |
41 | JYWQ150-180-22-2600-18.5 | 150 | 110 | 22 | 2600 | 1450 | 75 | CAK-150 |
42 | JYWQ150-150-26-2600-18.5 | 150 | 300 | 26 | 2600 | 1450 | 72 | CAK-150 |
43 | JYWQ150-110-30-2600-18.5 | 150 | 130 | 30 | 2600 | 1450 | 72 | CAK-150 |
44 | JYWQ150-300-15-2600-22 | 150 | 100 | 15 | 2600 | 1450 | 76 | CAK-150 |
45 | JYWQ150-130-30-2600-22 | 150 | 300 | 30 | 2600 | 1450 | 70 | CAK-150 |
46 | JYWQ150-100-40-3000-30 | 150 | 250 | 40 | 3000 | 1450 | 64 | CAK-150 |
47 | JYWQ200-300-7-3000-11 | 200 | 300 | 7 | 3000 | 1450 | 75 | CAK-200 |
48 | JYWQ200-250-11-3000-15 | 200 | 250 | 11 | 3000 | 1450 | 72 | CAK-200 |
49 | JYWQ200-300-10-3000-15 | 200 | 300 | 10 | 3000 | 1450 | 75 | CAK-200 |
50 | JYWQ200-250-15-3000-18.5 | 200 | 250 | 15 | 3000 | 1450 | 72 | CAK-200 |
51 | JYWQ200-400-10-3000-22 | 200 | 400 | 10 | 3000 | 1450 | 75 | CAK-200 |
52 | JYWQ200-200-20-3000-22 | 200 | 200 | 20 | 3000 | 1450 | 73 | CAK-200 |
53 | JYWQ200-250-22-3000-30 | 200 | 250 | 22 | 3000 | 1450 | 73 | CAK-200 |
54 | JYWQ250-600-7-3000-22 | 250 | 600 | 7 | 3000 | 1450 | 78 | CAK-250 |
55 | JYWQ250-600-9-3000-30 | 250 | 600 | 9 | 3000 | 1450 | 78 | CAK-250 |
JYWQ自動攪勻排污泵使用注意事項
(1)運轉前應用兆歐表檢查電機定子繞組對地的絕緣電阻,低不得少于50兆歐。
(2)檢查電纜有無破損、折斷等現象。如有損傷須及時更換,以免漏電;電纜截面應與電流相匹配。
(3)電壓超過額定電壓的±10%時,不得啟動電泵。
(4)以保證使用安全,必須將四芯電纜中的接地線可靠接地,以防發生觸電事故。
(5)電泵潛入水中時,應垂直起吊,不允許橫放著地,更不能陷入污泥中。停止使用時應將電泵吊起清洗干凈,置于干燥處,并注意防凍。
(6)禁止將電纜作為安裝起吊繩使用。
(7)檢查轉子運轉方向,從上向下看應為順時針方向旋轉。
(8)室外的開關或接線端應有防雨、防潮措施,濕手或赤足時禁止觸及開關,防止觸電。
(9)移動電泵時,必須切斷電源,電泵在運行時人不得接觸水源,以防漏電發生人身事故。
(10)嚴禁電機缺相運轉,如發現保險絲熔斷,應檢查原因后方可繼續使用,不得任意加粗保險絲。
(11)泵運轉時,應有專人管理,如發現有不正常現象應立即停機檢查,排除故障。(指末配全自動保護柜的情況)。
(12)電泵在規定的工作介質條件下正常運行半年后,應檢查油室密封狀況,如油室中的油呈乳狀或有水沉淀,應及時更換10~20號機械油和機械密封。對于在惡劣工作條件下使用的電泵,更應經常檢修。
(13)用戶應根據實際使用的工況選擇合適的流量揚程,以達到佳使用效果,泵銘牌或說明書上所示參數為該佳使用工況點,用戶可選在(0.7~1.2)倍佳流量內使用,禁止超流量使用,否則流量過大,揚程過低容易使電機過載。
JYWQ自動攪勻排污泵故障的原因及解決方案
故障現象 |
原因分析 |
排除方法 |
JYWQ自動攪勻排污泵不能啟動與運轉 |
電壓太低 |
調節電壓或電壓正常時工作 |
葉輪被雜物卡住 |
清除雜物 |
|
螺帽或平鍵損壞致使葉輪打滑 |
更換損壞零件 |
|
JYWQ自動攪勻排污泵超負荷 |
轉子部件卡滯或過流部件被異物卡住 |
重新裝配、清除異物 |
軸承損壞、軸變形 |
更換軸承、校正軸 |
|
JYWQ自動攪勻排污泵流量不足 |
吸入口或輸出管被阻 |
清除雜物,保證暢通 |
電機轉速低于額定轉速 |
提高轉速 |
|
葉輪打壞 |
更換葉輪 |
|
揚程過高 |
降低揚程 |
|
旋向相反 |
改換轉向 |
|
介質太稠或供應量不暢通 |
沖稀介質,增大供應量 |
|
JYWQ自動攪勻排污泵噪聲與振動 |
葉輪與泵體有磨擦 |
檢查泵的裝配并進行調整 |
軸承損壞或少油 |
更換軸承或加油 |
|
螺帽松動 |
更換螺帽 |
|
泵體中有雜物 |
清除雜物 |
|
吸入口有空氣滲入 |
控制低水位 |
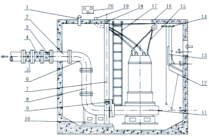
JYWQ自動攪勻排污泵自動藕合式安裝示意圖
![]() |
|
JYWQ自動攪勻排污泵自動藕合式安裝平面圖
JYWQ自動攪勻排污泵性能曲線圖
JYWQ自動攪勻排污泵使用條件
1、介質溫度不超過60℃,介質重度為1~1.3kg/dm3,PH值在4~10范圍內。
2、1Cr18Ni9ti不銹鋼材質可適用各種腐蝕性介質。
注:用戶如有特殊的介質、溫度等要求,請要訂貨時注明輸送介質詳細情況,以便本公司提供更為可靠之產品.
我要評論 | |
公司名稱/個人: | |
手機/電話: | |
評論內容: | |